Welcome to
Bewley
From only £160,600 for a 40% share
Plot(s)194, 220, 229, 286
The Bewley features
- Spacious living areas
- Large kitchen/dining area
- Four bedrooms
- Built-in stores
- Private parking
The Bewley is a fantastic new home available to purchase from £160,600 for a 40% share.
Find share prices & more in our key information document.
-
Four bedroom detached
-
Shared Ownership
-
£160,600 for a 40% share
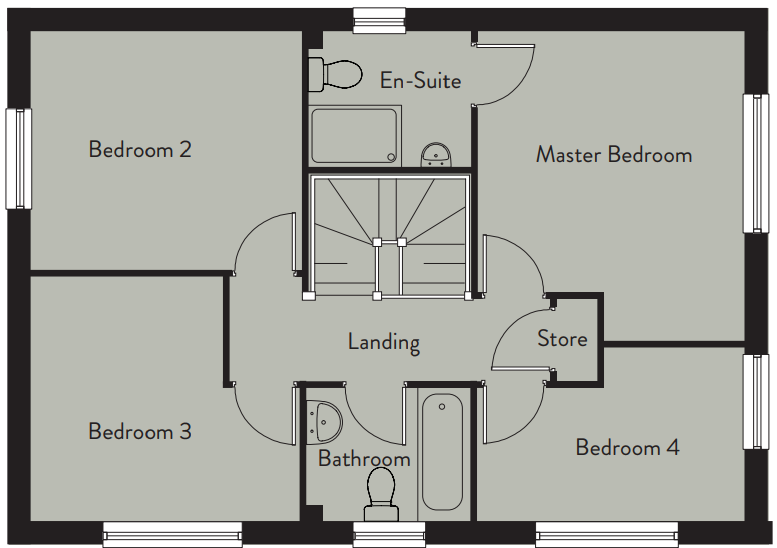
House Plan
Ground Floor
| Lounge | 3.5 x 6.3 (m) | 11'4 x 20'10 (ft) |
| Kitchen/Dining | 3.4 x 6.3 (m) | 11'3 x 20'10 (ft) |
| WC | 1.1 x 1.6 (m) | 6'11 x 5'7 (ft) |
First Floor
| Master Bedroom | 3.5 x 4.0 (m) | 11'6 x 13'2 (ft) |
| En-Suite | 2.1 x 1.7 (m) | 6'11 x 5'9 (ft) |
| Bedroom 2 | 3.5 x 3.1 (m) | 11'7 x 10'2 (ft) |
| Bedroom 3 | 3.5 x 3.2 (m) | 11'6 x 10'5 (ft) |
| Bedroom 4 | 3.5 x 2.3 (m) | 11'6 x 7'5 (ft) |
Open the door to an affordable new home
At Torus Homes we understand that buying a new home is one of the biggest decisions you make in life.
With affordable purchase options, plus developments across the region, we’re here to help make your dream a reality.
Other available homes at The Oaks at Woodland Manor
| Plot(s) | House Type | Bedrooms | Scheme | Ownership Share | Price | More |
|
See brochure |
Astbury |
2 |
Shared Ownership |
40% |
£94,000 |
View |
|
241, 274 |
Huxley |
3 |
Shared Ownership |
40% |
£106,400 |
View |
|
275 |
Mayfield |
3 |
Shared Ownership |
40% |
£106,400 |
View |
|
See brochure |
Dover |
3 |
Shared Ownership |
40% |
£116,900 |
View |
|
170, 213 |
Bosley |
3 |
Shared Ownership |
40% |
£116,900 |
View |
|
162, 163, 267, 268, 269, 270 |
Hartford |
3 |
Shared Ownership |
40% |
£124,000 |
View |
|
230 233 240 273 |
Kingsley |
3 |
Shared Ownership |
40% |
£130,600 |
View |
|
171, 201, 219 |
Oxford |
3 |
Shared Ownership |
40% |
£132,700 |
View |
|
161, 204, 225, 234, 254, 277 |
Henley |
3 |
Shared Ownership |
40% |
£132,700 |
View |
|
203, 239, 245, 246, 266 |
Broadway |
4 |
Shared Ownership |
40% |
£149,400 |
View |
|
164, 178, 238, 244 |
Langley |
4 |
Shared Ownership |
40% |
£160,000 |
View |
Get in touch
If you're interested in a property, have any questions or would like to speak to someone please enter your details and send us a message below.
* Indicates Required
Keep up-to-date
Sign up to our newsletter to get the latest updates on new housing developments.
* Indicates Required

